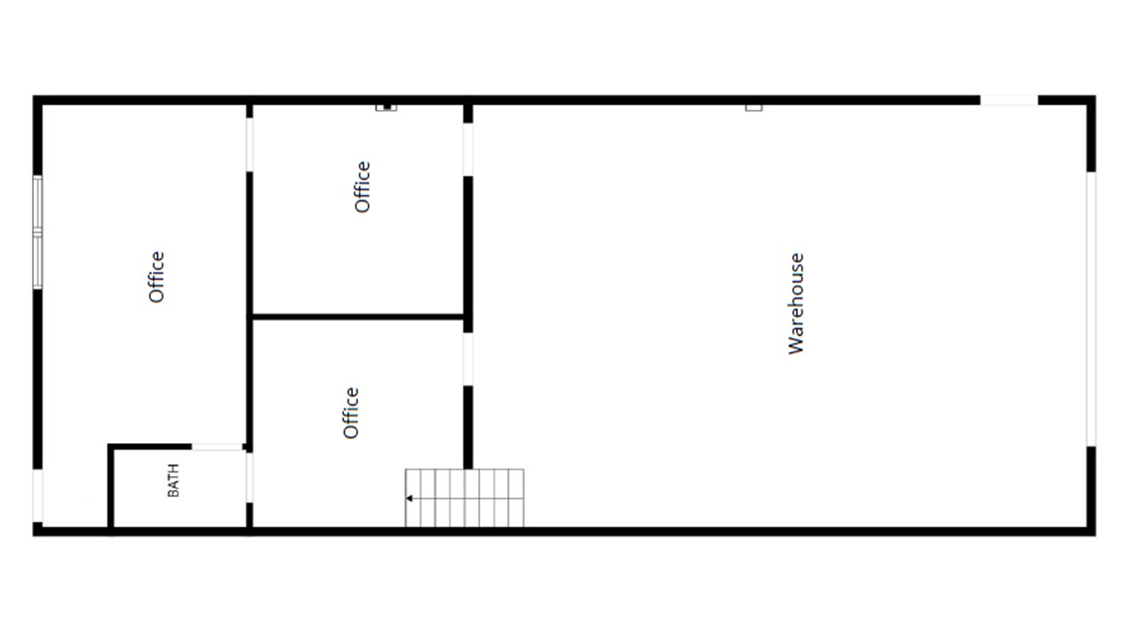
Rare opportunity to lease a warehouse with office space at Crown Industrial Park in Longview! Suite D2 is approx. 1,527 SF of warehouse & office space spread over one and a half floors. Features a large private office/storage, one 14 foot tall grade roll up door, and a private restroom. This highly desired industrial complex is zoned mixed use commercial/industrial district allowing for multiple uses for your business needs. Asking $1,300 per month plus triple nets (NNN).  Don’t miss out on an opportunity, call today for your private tour.

Available Commercial Spaces
SpaceSqftPriceDescr
D2
1,527 SF
1,300
Asking $1,300 per month plus triple nets (NNN)

FOR LEASE
1425 Alabama Street
Longview, WA 98632


Available SF: 1,527 - 1,527
Type: Industrial
Warehouse
Chris Roewe
Principal/Managing Broker
Lindsay Johnson
Licensed Assistant